오픈&참조도면

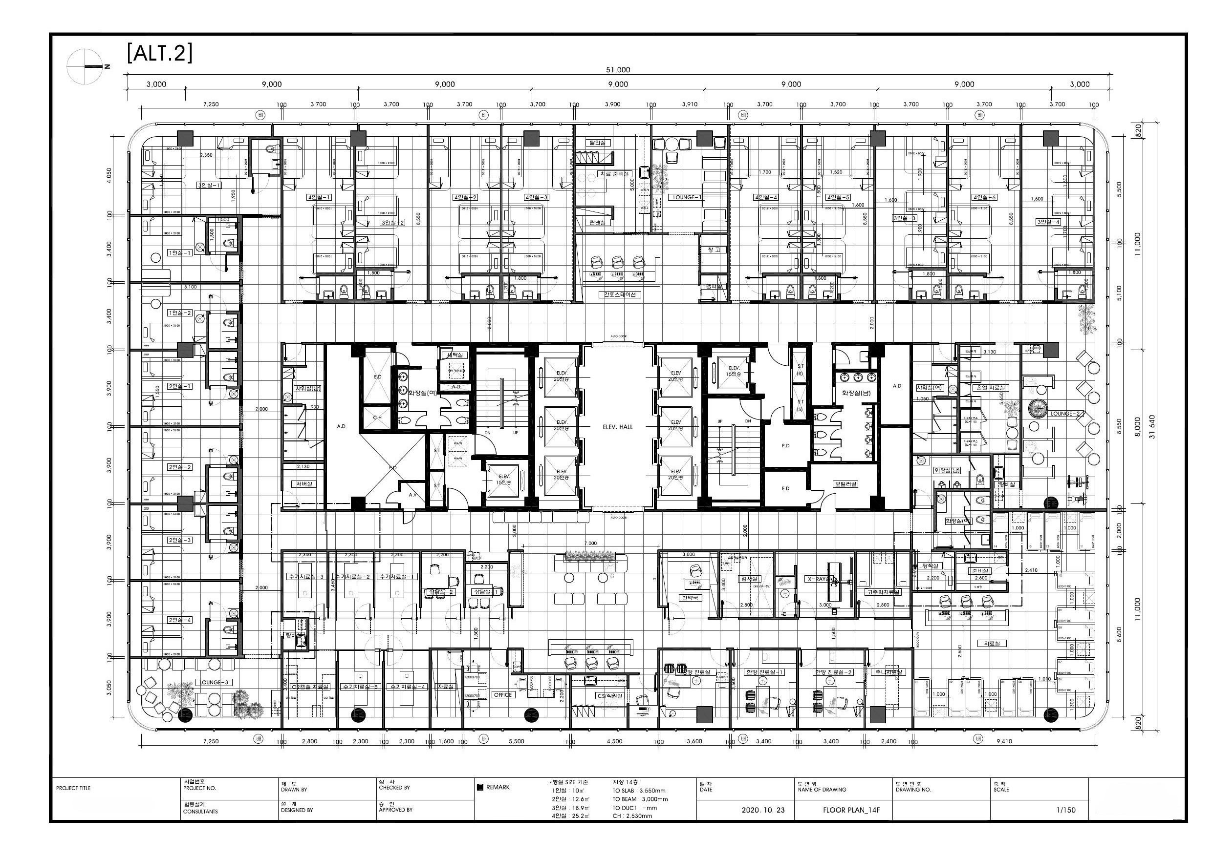
한방병원 150PY 도면1

2025-11-21

28 0
150평전후
한방병원

1. page 01_479.jpg

첨부 파일

1. page 01_479.pdf

1005.25 KB다운로드 1회

병원인테리어 다모아

환자를 위한 공간, 의료진을 위한 공간을 함께 고민하는 병원 인테리어 전문 플랫폼

회사명 : (주) 병원인테리어 다모아

사업자등록번호 : 456-81-01443

대표자 : 최유미

대표전화 : 02-543-3853

이메일 : damoawa@naver.com

주소 : 서울시 성동구 아차산로 126 더브리세종타워 13층 1305호

고객센터

평일 09:00 ~ 18:00

점심 12:00 ~ 13:00

(주말/공휴일 휴무)

커뮤니티 바로가기

© 2025 병원인테리어 다모아. All rights reserved.