로딩 중...
견적의뢰
공지/이벤트
플래너신청
업체찾기
자료실
TOP
홈
견적의뢰
공지/이벤트
플래너신청
업체찾기
자료실
업체찾기
자료실
견적의뢰
상담신청
공지/이벤트
일반문의
목록으로
자료실
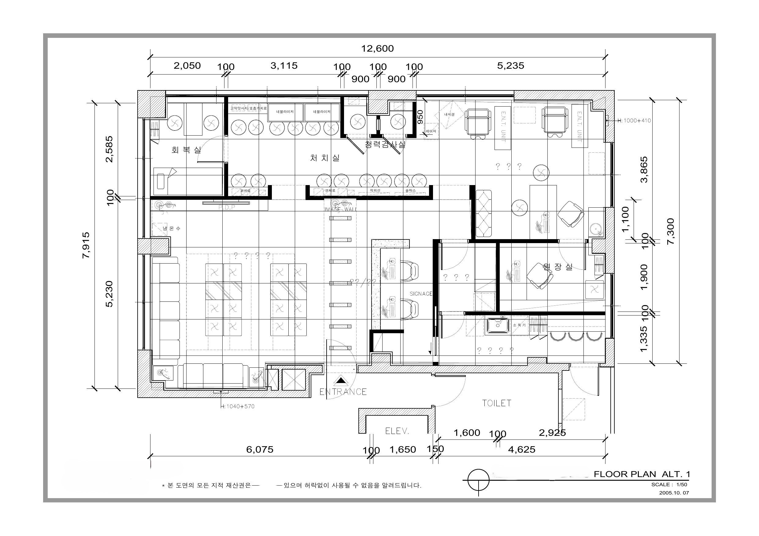
이비인후과 50PY 도면13
4 조회
0 다운로드
U
알 수 없음
2025. 10. 27.
50평전후
이비인후과
미리보기
첨부 파일 (1)
13. page 13 28.pdf
PDF • 207.2 KB
다운로드
이비인후과 50PY 도면13 - 자료실 | 병원 인테리어 다모아 | 병원 인테리어 다모아