로딩 중...
견적의뢰
공지/이벤트
플래너신청
업체찾기
자료실
TOP
홈
견적의뢰
공지/이벤트
플래너신청
업체찾기
자료실
업체찾기
자료실
견적의뢰
상담신청
공지/이벤트
일반문의
목록으로
자료실
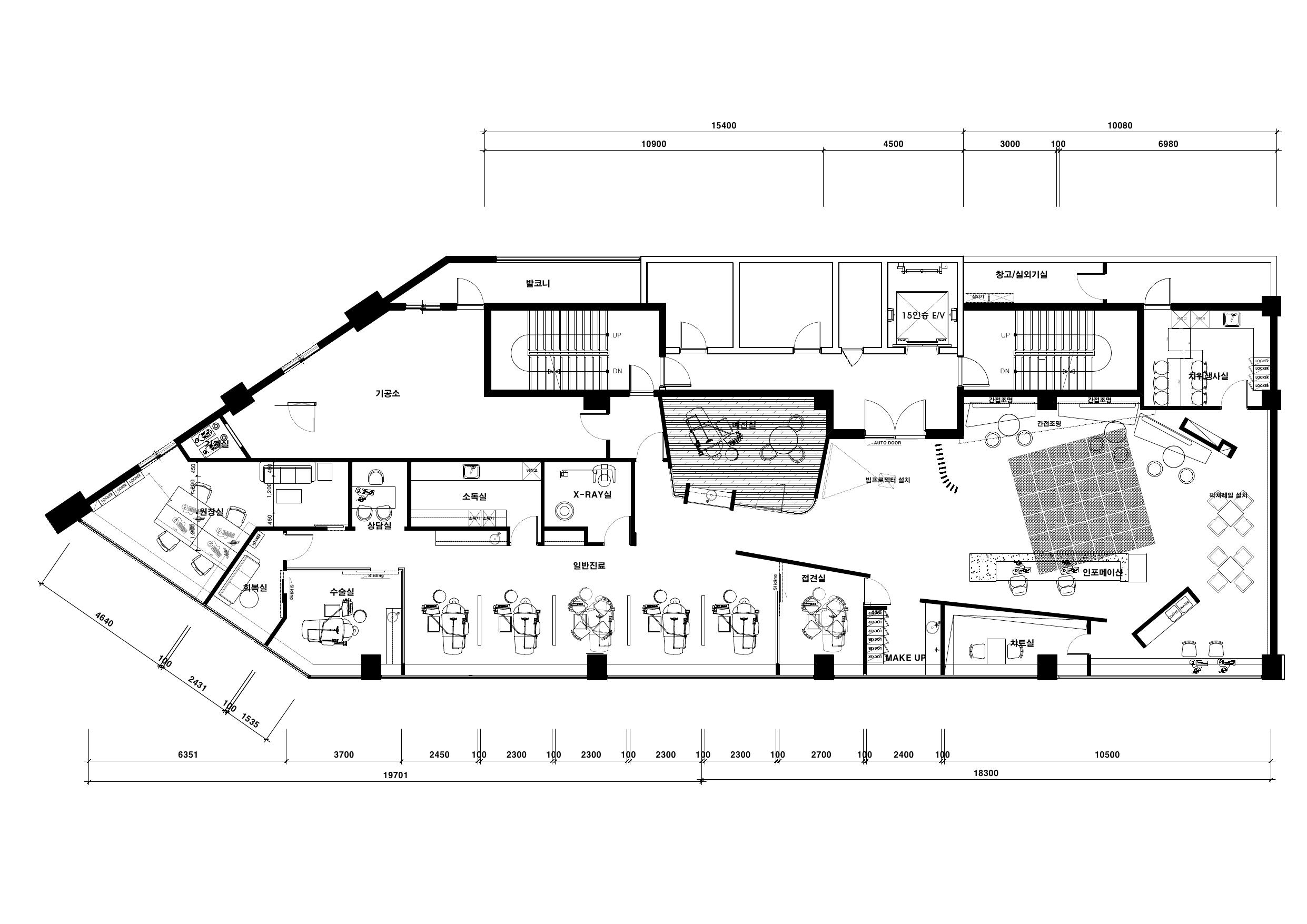
치과 150PY 도면1
21 조회
0 다운로드
U
알 수 없음
2025. 10. 28.
150평전후
치과
미리보기
첨부 파일 (1)
1. page 01_134.pdf
PDF • 334.7 KB
다운로드
치과 150PY 도면1 - 자료실 | 병원 인테리어 다모아 | 병원 인테리어 다모아